Ausführungsplanung / Konstruktion
Ingenieurbüro Axel Schröder
 
Präzise, detailliert und effizient.
Ausführungsplanung und Konstruktion
 
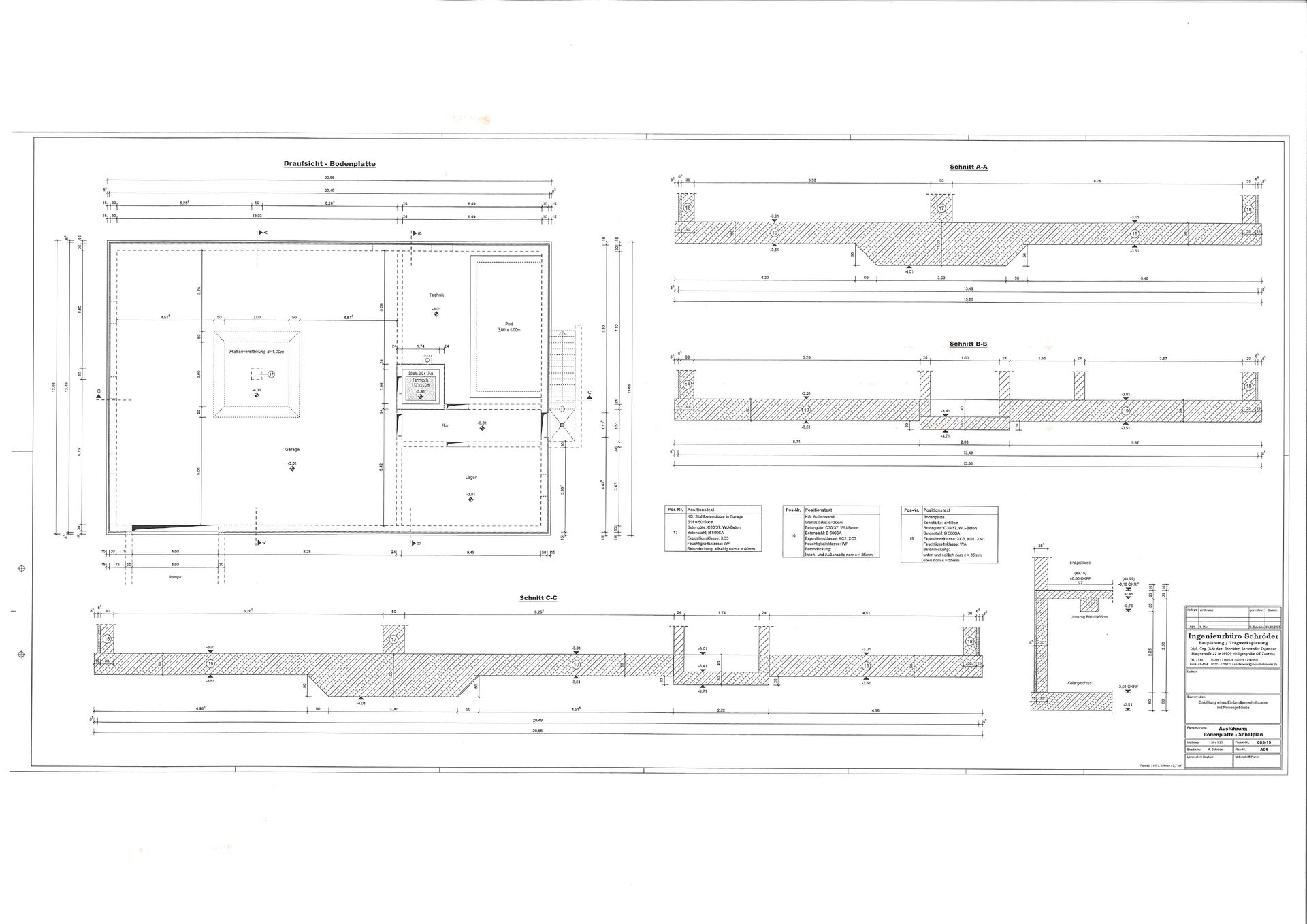
Die Ausführungsplanung und Konstruktion ist ein zentraler Bestandteil unserer Leistungen im Ingenieurbüro Schröder. Wir erstellen mit modernster Software und Fachwissen detaillierte Schal- und Bewehrungspläne sowie Konstruktionspläne. Material- und Bewehrungslisten sind ein Bestandteil auf unseren Zeichnungen. Eine solide Ausführungsplanung dient als Grundlage für eine verbindliche Angebotsabgabe durch die Baufirma. Zusätzlich wird eine sichere und effiziente Bauausführung sowie ein reibungsloser Ablauf auf der Baustelle gewährleistet.




